はじめに
オフィスレイアウトがビジネスに与える影響
オフィスレイアウトは単なるデスクの配置以上の意味を持ち、従業員のモチベーション、生産性、企業イメージ、さらにはコミュニケーションの質にまで大きく影響します。効果的なレイアウトは業務効率を向上させ、チームの連携を強化し、創造性を刺激する一方で、不適切なレイアウトはストレスや集中力低下の原因となることもあります。特に昨今の多様な働き方に対応するためには、従業員一人ひとりが最高のパフォーマンスを発揮できる環境づくりが不可欠です。
本記事の目的と読者層
本記事は、オフィスレイアウトの変更、新設、または増員に伴う内部改装を検討されている経営者様や総務担当者様に向けて、その不安や疑問を解決することを目的としています。オフィス設計の基礎知識から、陥りやすい落とし穴、そして具体的な成功事例までを網羅的に解説し、読者の皆様が理想のオフィスを実現するための信頼できる情報を提供します。最終的に、当社のオフィスレイアウトサービスをご検討いただくきっかけとなることを目指します。
オフィス設計・施工サービスのご紹介
当社では、プロのプランナーがお客様の理想のオフィスを実現するための無料相談サービスを提供しています。3Dソフトを用いたレイアウトのご提案や、オフィス家具を含めた一括納入、各種工事施工まで、お客様のニーズに合わせたワンストップサービスが可能です。フロアの一部変更からビル全体のリフォームまで、規模の大小にかかわらず対応いたしますので、ぜひお気軽にご相談ください。

オフィスレイアウトの基本知識
オフィスレイアウトとは何か
オフィスレイアウトとは、企業活動を効率的に行うために、オフィス空間を用途や機能に応じて区分け(ゾーニング)し、相互関係や動線を考慮しながら家具や機材などを計画的に配置することです。単にデスクを並べるだけでなく、従業員の働きやすさ、業務効率、コミュニケーションの活性化、さらには企業のブランドイメージ形成にまで影響を与える重要な要素です。
オフィスの基準寸法と動線計画
快適なオフィス環境を作るためには、適切な基準寸法と動線計画が不可欠です。
- 通路幅:
-
- 一人歩行の場合: 最低60cm、ゆとりを持たせるなら80cm以上
- 二人すれ違う場合: 最低120cm、メイン通路では160cm以上が理想
- 車椅子利用の場合: 90cm以上、すれ違いには180cm以上
- デスク周りの寸法:
-
- デスクの奥行き: 一般的に70cm、作業内容によっては60cmや75cmも選択肢
- デスクとデスクが背中合わせの場合: 160cm~180cm(椅子の可動域を考慮)

- デスクと壁の間: 通路として使用しない場合は90cm、通路として使用する場合は120cm~140cm
- 収納・複合機周りの寸法:
-
- 収納庫・複合機の動作空間: 屈んだり扉を開けたりする動作を考慮し、奥行き約1000mmが目安。座席の背後に置く場合は1500mm以上
動線計画は、人がオフィス内をどのように移動するかを分析し、最適な移動経路を設計するプロセスです。プリンターやコピー機などの共有設備は、従業員がアクセスしやすい場所に配置し、無駄な移動を削減することが重要です。また、来客が多い場合はエントランス付近に会議室を配置するなど、目的別の動線を考慮することで、業務効率と顧客満足度を高めることができます。
ゾーニングの考え方
ゾーニングとは、オフィス全体の空間を機能や用途に応じて区分けし、各エリアに家具や設備を配置するプロセスです。
- エリアの明確化:
- 執務室、会議室、リフレッシュスペース、エントランス、サーバールームなど、各エリアの役割を明確にします。
- 機能性の最大化:
- 例えば、集中作業が必要なエリアの近くに会話ができるリフレッシュスペースを設けることで、集中とコミュニケーションのバランスを取ります。
- セキュリティレベルの設定:
- 機密情報を扱うエリアは入退室管理を厳重にするなど、セキュリティレベルに応じた対策を講じます。
法律・安全・感染対策も忘れずに
オフィスレイアウトは、法律や安全基準、感染症対策にも配慮する必要があります。
- 建築基準法による基準
- 通路幅や天井高など、建物の安全性に関する最低基準を定めています。居室の両側に通路がある場合は160cm以上、片側のみの場合は120cm以上の通路幅が必要です。
- 消防法による基準
- 避難経路の確保が求められます。メイン通路は120cm以上、可能であれば160cm以上の幅を確保し、家具などで塞がないように注意が必要です。
- 労働安全衛生法による基準
- 従業員の作業環境に関する法律で、作業スペースの広さや照明の照度などが定められています。一人当たりの気積は10m³以上、照度は精密作業で300ルクス以上、通常作業で150ルクス以上が必要です。
- 感染症対策
- デスク間の距離を200cm以上に広げる、背面型や並列型のレイアウトを採用する、パーテーションを設置する、十分な換気を確保するなど、状況に応じた対策を検討しましょう。
デスク配置・座席運用のパターン
主なデスク配置パターン6選と特徴
オフィスのデスク配置には様々なパターンがあり、それぞれにメリット・デメリットがあります。自社の業務内容や企業文化に合わせて最適な選択をすることが重要です。
島型レイアウト・対向型レイアウト
- 特徴
- デスクを向かい合わせに配置し、グループごとに島を形成します。日本で最もスタンダードなレイアウトです。
- メリット
- コミュニケーションが取りやすく、情報共有がスムーズ。省スペースで多くのデスクを配置可能。
- デメリット
- プライバシー確保が難しく、集中作業には不向き。
背面型レイアウト
- 特徴
- デスクを背中合わせに配置し、チームを形成します。
- メリット
- プライバシーを確保しつつ、後ろを向けばコミュニケーションが取れるため、集中と交流のバランスが良い。
- デメリット
- スペース効率が対向型に劣る場合がある。
同向型レイアウト
- 特徴
- 全てのデスクを同じ方向に向けて配置します。
- メリット
- 個々の業務に集中しやすく、前方にプロジェクターなどを配置すれば情報共有しやすい。会議室、銀行窓口やコールセンターなどに向いています。
- デメリット
- 部署内のコミュニケーションが取りにくい。スペース効率が悪い。
ブース型レイアウト
- 特徴
- パネルやパーテーションでデスクを間仕切り、半個室的な作業スペースを作ります。
- メリット
- 周囲の視線や音を遮断し、集中力を高く保てる。機密性の高い業務に適しています。
- デメリット
- コミュニケーションが制限される。圧迫感があり、設置コストもかかる。
ブーメラン型(ベンゼン型・亀甲型)レイアウト
- 特徴
- L字型などの120°角デスクを組み合わせて亀甲状に配置します。
- メリット
- 広い作業スペースを確保でき、資料を広げる業務や複数モニターの設置に適している。コミュニケーションも取りやすい。
- デメリット
- 非常に広いスペースが必要となり、席数が限られる。
十字型・蛇型・ジグザグ型レイアウト
- 特徴
- デスクを縦横に交差させたり、卍型に配置したり、あるいは蛇のようにぐねぐねとした形に配置します。
- メリット
- 正面を向いた時に目線が交差せずプライバシーを確保しつつ、横を向けばコミュニケーションが取れる。自然な交流が生まれやすい。
- デメリット
- 1人当たりのスペースが広く必要で、スペース効率は悪い。
座席運用のバリエーション
働き方の多様化に伴い、座席の運用方法も進化しています。
- 固定席
-
- 従来のスタイルで、従業員それぞれに決められた席があります。
- メリット:チーム内の連携が取りやすい。個人ごとの資料や荷物管理がしやすい。
- デメリット:社員人数分のチェア・デスク費用がかかる、リモートワークとの相性が良くない
- フリーアドレス
-
- 個人に特定の席を設けず、出社したら空いている席を自由に選んで使用するスタイルです。
- メリット:コミュニケーションの活性化、スペース効率の向上、コスト削減。
- デメリット:個人の荷物管理が課題、集中しにくい場合がある、メンバーの所在が不明確になりがち。
- グループアドレス
- フリーアドレスの一種で、部署やチーム単位で定められたエリア内で自由に座席を選ぶスタイルです。固定席とオールフリーアドレスの折衷案として、チームの一体感を保ちつつ柔軟性も確保できます。いきなりフリーアドレスにして働き方がフィットするか不安という場合、まずグループアドレス式から導入してみるのがおすすめです。
- ABW(Activity Based Working)
-
- 仕事内容や目的に合わせて働く場所を柔軟に選択できる働き方です。オフィス内だけでなく、自宅やカフェ、サテライトオフィスなども選択肢に含まれます。
- メリット: 生産性・業務効率の向上、従業員満足度の向上、多様な人材の確保、固定コストの削減。
- デメリット: 個人の荷物保管場所の確保、マネジメントの難しさ、情報セキュリティ対策が必要。
配置パターン別メリット・デメリット
各デスク配置パターンには、それぞれ固有のメリットとデメリットがあります。例えば、対向型はコミュニケーションを促進しやすい一方で集中しづらい、ブース型は集中しやすいがコミュニケーションが取りにくいといった点が挙げられます。自社の業務内容や従業員のニーズを考慮し、これらのバランスをどのように取るかが、最適なオフィスレイアウトを決定する上で重要です。
オフィスレイアウト設計の押さえるべきポイント
デスク・家具選びとワークスペース設計
オフィスレイアウトにおいて、デスクや家具の選定は機能性とデザイン性の両面から重要です。
- デスクサイズ
-
- 業務内容に合わせて適切なサイズを選びます。一般的に幅1200mm×奥行き700mmが標準ですが、ノートPC中心の業務ならコンパクトに、複数モニター使用なら広めのデスクが必要です。
- オフィスデスク(事務机)はJIS規格で寸法が定められています。新JIS規格では高さ700mm、幅と奥行は100mm・200mm単位で増減します。また、これとは別に高さ740mmの旧JIS規格、高さ720mmのJOIFA推奨規格が存在します。
-
オフィスデスクのサイズ例
- STW-800D
- 幅800×奥行500×高さ720mm
- ¥12,207
- HDA-1045
- 幅1000×奥行450×高さ700mm
- ¥9,028
- STデスク
- 幅1000×奥行600×高さ700mm
- ¥12,320
- SDN501NA-AWH
- 幅1060×奥行730×高さ740mm
- ¥39,655
- NED127A-AWH
- 幅1200×奥行700×高さ700mm
- ¥69,652
- NED167BA-AWH
- 幅1600×奥行700×高さ700mm
- ¥101,343
- オフィスデスクの一覧ページはこちら
- チェア
-
- 長時間座ることを考慮し、機能性(昇降機能、リクライニング、肘掛けなど)とデザイン性の高いエルゴノミクス家具を選びましょう。
-
多機能オフィスチェアの例
- SNC-L17BK
- 水平リクライニング
- ¥50,314
- FEM-14A
- 可動式肘掛け付き
- ¥13,420
- SNC-D31K
- 導電・静電気除去
- ¥62,590
- CD77JE-F2X1
- チルトリクライニング
- ¥94,820
- VMC-29
- ランバーサポート付き
- ¥6,270
- SNC-NET22BK
- ヘッドレスト付き
- ¥33,231
- オフィスチェアの一覧ページはこちら
- 収納
-
- 書類や私物を整理するための収納スペース(キャビネット、ロッカーなど)は必須です。特にフリーアドレスを導入する場合は、パーソナルロッカーの設置が重要になります。
-
書庫・キャビネット・個人ロッカーの例
- 収納家具の一覧ページはこちら
エントランス・会議室・リフレッシュスペースの工夫
執務スペース以外のエリアも、企業の印象や従業員の満足度に大きく影響します。
- エントランス・受付
-
- 企業のブランドイメージを伝える「会社の顔」となる空間です。
- コーポレートカラーやロゴを取り入れ、来訪者に好印象を与えるデザインを心がけましょう。
- 【実際の施工事例】弊社エントランスの場合で実際の改装例をご覧いただけます!
- 会議室
-
- 人数や目的に応じて多様な会議室を設けることが理想です。
- 少人数でのWeb会議に対応するフォンブースや、多人数でのプレゼンテーションに適した大型会議室など、機能性を考慮した設計が必要です。
- リフレッシュスペース・休憩室
-
- 従業員がリラックスし、気分転換できる空間は、生産性向上に寄与します。
- カフェ風のスペースや、自然光を取り入れたり、グリーンを配置したりすることで、快適性を高めることができます。
- 配線・IT
-
- 乱雑になりがちなケーブル類は、OAフロアや配線ボックス付きデスクを活用して整理し、すっきりとした空間を保ちましょう。無線LAN環境の整備も、フレキシブルな働き方を実現する上で重要です。
- 弊社のオフィスレイアウトサービスでは、足元のコード、ケーブル類を整理。配線・拡張工事や多分岐配線による過負荷の調査。ネットワーク・IP電話システムの構築。配線を収納するOAフロアの施工など、業務形態に応じた最適の配線プランをご提案致します。
-
- セキュリティ・防犯対策
-
- 重要文書・データの漏洩防止のため、入退室管理システムや防犯カメラの設置、施錠可能な書庫の導入などを検討します。ゾーニングによってセキュリティレベルを設定し、エリアごとの対策を講じることが効果的です。
-

- 入退室の管理
ワークデスクと応接室がオープンにつながっていると、大切な情報を見聞きされてしまったり、ワークスペースに部外者の出入りが頻繁になり、書類を無断持ち出しされる可能性があります。これからはカードや指紋認証などで入室者を限定するとともに、入退室の記録を残せる入退室管理システムの導入が不可欠です。

- 重要エリアの監視
サーバールームなどの重要エリアは入退室を管理するだけでなく、24時間体制での監視が求められます。ネットワーク対応の防犯カメラで監視し、ハードディスクで録画する防犯カメラシステムの運用をお考えください。

- カギの管理
重要書類を保管している金庫や書庫は、鍵の管理にもこだわりましょう。鍵を取り出せる人を制限し、使用の記録が残せるキーボックスシステムを導入すれば、書庫へのアクセスをくまなくチェックできます。

- 文書・メディアの処分管理
個人情報に関する文書やCD、MD、フロッピーデスクなどが不要になった際は、処分方法を検討しましょう。そのまま廃棄すると、ごみの中から情報が持ち出される危険があります。個人情報に関する文書、メディアについては、シュレッダーなどで細分し、処分することをおすすめします。

- パソコンのデータアクセス管理
第三者によってパソコンにアクセスされると、大量の個人情報が漏洩してしまいます。事故が起きた場合も犯人の特定は不可能に近いといえるでしょう。不正なアクセスを防ぐには、許可された人だけがパソコンにログインできるシステムを確立しなければなりません。指紋認証によるパソコン管理システムなら、機密性の高い情報もしっかりと保護できます。

- 災害時の破損リスク管理
地震によるOA機器の落下は、一瞬にして機器を破壊し、大切なデータの損失を招きます。もしもの場合に備えて、OA機器の落下を防ぐ対策を立てておきましょう。
- 防災対策
- 地震対策としてオフィス家具の転倒防止措置を講じるほか、避難経路の確保は消防法などの法令遵守の観点からも最優先事項です。通路幅を十分に確保し、障害物を置かないようにしましょう。
- コスト削減の提案
- オフィスの新設・移転・改装にかかる費用だけでなく、リニューアル後のオフィス運営コストも考慮したプランニングが重要です。フリーアドレスの導入による省スペース化は、賃料削減にもつながる可能性があります。
- 『オフィスレイアウトサービス』ではワーカーの業務形態の調査・分析により最適なスペーシングをプランニング可能です。必要なオフィスのサイズを見直すことで、大きくスペースの縮小・賃料の削減が出来た事例もございます。
-
- 移転前:178㎡のオフィス

- 移転後:158㎡のオフィス(20㎡削減)

- 費用対効果の検証
- リニューアルに要する費用と、リニューアル後の生産性向上や従業員満足度向上といった効果を比較し、コストパフォーマンスを評価します。
- 『オフィスレイアウトサービス』では移転前後の費用対効果や、オフィスを退去する際の原状復帰費用、移転工事などを含めたトータルコストのご提案が可能です。
-
- 費用対効果の例

- トータルコスト計算の例

- 狭すぎる通路
- 人がすれ違う際に毎回立ち止まったり、体をよけたりする動作は、想像以上にストレスとなり、業務効率を低下させます。特にメイン通路は十分に広く確保することが重要です。
- 共有設備の配置ミス
- コピー機やシュレッダーなど、多くの従業員が利用する共有設備をオフィスの奥まった場所に配置すると、移動距離が長くなり、無駄な時間が発生します。また、人が集中しやすい場所の通路が狭いと、混雑してさらに効率を下げます。
- 機密情報の漏洩リスク
- 集中エリアとコミュニケーションスペースが近すぎたり、フリーアドレス導入時に個人の荷物管理が不十分だったりすると、機密情報の漏洩リスクが高まります。
- 防災上の問題
- 避難経路を家具で塞いでしまったり、転倒しやすいパーテーションや背の高い書庫を固定せずに設置したりすることは、災害時の安全を著しく損ないます。消防法などの法令遵守は絶対条件です。
- 一方的なレイアウト変更
- 経営層や設計者の一方的な視点だけでレイアウトを決定し、実際に働く従業員の意見を無視すると、「使いにくい」「集中できない」といった不満が生じ、モチベーションや生産性の低下を招きます。
- 導入目的の不明確さ
- 「流行だから」という理由だけでフリーアドレスを導入しても、明確な目的や運用ルールがなければ、結局は固定席化したり、期待する効果が得られずにコストと労力だけがかかる結果になりかねません。
- コミュニケーションの希薄化
- 個々の集中を重視しすぎてブース型の席ばかりにしてしまうと、部署間のコミュニケーションが希薄になり、偶発的なアイデアが生まれにくくなる可能性があります。
- 集中力の低下
- コミュニケーション活性化を狙ってオープンオフィスを導入した結果、騒音や視線が気になり、集中して作業に取り組めなくなるケースもあります。静かに集中できるスペースと、活発に交流できるスペースのバランスが重要です。
- 以前の玄関口
-
当社のリニューアル前の玄関スペースです。玄関先が暗く、来客を迎えるには照明の明るさが不足。階段に隙間があり、安全性の問題、下からの目線が気になる状況でした。
- オフィスレイアウトサービスによる提案/設計
-
平面図や3Dレイアウトによるイメージの提供を受けながら完成形を想像し打ち合わせ。
-
- リフォーム後の玄関口
-
間接照明を多く取り入れ、壁紙を新しく張り替えるなど、玄関、階段部分のリニューアル提案を採用。明るい玄関を実現。階段部分の隙間部分も改善され、安全面、快適面で大幅に改善されました!
- レイアウト見直し前
-
ご注文を頂いた事務所の例です。施工前の事務所内は余裕の無いスペースで「島」同士が隣接して並べられており、デスクワークに集中しにくい状況。パーテーションなどによる仕切りも無いので部外者・社内の区別なく話が筒抜けで、快適性を感じられない環境となっていた。
- オフィスレイアウトサービスによる提案/設計
-
リフレッシュコーナーやトイレなどトータルでコーディネートし、3Dレイアウトイメージや平面図で改修後のオフィス空間をご提案させていただきました。
- レイアウト見直し後
-
細かく仕切られたオフィスにリニューアル。パーテーションやデスクトップパネルで仕切られ、視線も気にならず集中できる快適なワークスペースになっています。
- レイアウト見直し前
-
狭いスペースにデスクが並べられ、パソコンなどOA機器の増加で、足元付近の配線も複雑化。机上の余裕もなくなり満足なデスクワークが行えない状況になっていました。電源や機器の接続一つとっても、どの機器のケーブルがどこを通っているのか分からない状態でした。
- オフィスレイアウトサービスによる提案/設計
-
床下配線による効率化を実施。「島」と「島」の間を十分に確保し、広めのデスクを配置することでオフィス全体の効率化をご提案。
-
- レイアウト見直し後
-
事務所には90℃の角度を活かしてパソコンなどをゆったり置けるコーナーデスクをセッティング。足元の配線を明確に整理し、広いデスクスペースを実現しました。
- シンプルかつ落ち着きのあるモダンオフィス
- フリーアドレス型レイアウトに横長オフィスデスクを組み合わせ、黒と木目調を基調としたシックなデザイン。配線付きデスクの採用で機能性も確保し、誰がどこに座っても落ち着いて作業できる環境を実現。
- 仕事にメリハリがつく集中ブース
- ブース型レイアウトを専用デスクではなくパーテーションの併用で実現。個々の視線や雑音を遮り、作業への没入感を高める集中ブースとして活用。フレキシブルなレイアウト変更にも対応可能。
- バーカウンターやカウンタースペース
- オフィス内にバーカウンターや充実したカウンタースペースを設置することで、カフェのような雰囲気で気軽に業務に取り組める場所を創出。社員同士の自然なコミュニケーションや新たなアイデアの創出を促進します。
- ファミレス席イメージ
- 窓際のデッドスペースを有効活用し、ファミレスのような形式の席を設置。会議室の代替やランチ、イベント開催時にも利用でき、従業員のコミュニケーション機会を創出します。
- 緑の多いヴィンテージ風オフィス
- 対向型レイアウトにヴィンテージ風のデザインを取り入れ、インテリアの差し色として観葉植物のグリーンを配置。リラックスできるワークスペースを構築し、コミュニケーションを活性化。
- バルコニー・テラス付きオフィス
- 屋外でリラックスできるバルコニーやテラススペースを設置。休憩やランチだけでなく、外部のお客様を招く際にも活用でき、従業員のストレス解消やコミュニケーションの場として機能します。
- 実績の豊富さ
- これまでの施工事例や実績数を確認し、自社のオフィス規模やイメージに近い実績があるかを確認しましょう。
- デザインの豊富さ
- 多彩なレイアウトデザインを提案できるか、自社の企業イメージやコンセプトを汲み取った提案をしてくれるかを確認します。
- 予算内でのサービスの豊富さ
- 予算内でどこまで対応可能か、予算オーバーの場合に代替案を提案してくれるかを確認しましょう。価格だけでなく、サービス内容や費用対効果も重視します。
- ヒアリングの丁寧さ
- レイアウト変更の目的や課題を丁寧にヒアリングし、クライアントに寄り添ってオフィスづくりを考えてくれる業者を選びましょう。
- ワンストップ対応の有無
- 設計から内装工事、家具選定、IT・配線工事、施工までをワンストップで対応できる業者であれば、手間やコストを削減でき、スムーズなプロジェクト進行が期待できます。
-
目的設定(課題ヒアリング・要件整理)
まずはオフィスレイアウト変更の目的(例:業務効率向上、コミュニケーション活性化、増員対応など)を明確にします。現状の課題や従業員のニーズをヒアリングし、解決すべき問題を整理します。
※ 設計者と現場の間で目的が曖昧なまま進行すると、かえって不満や効率低下を招く可能性があります。
-
業者選定・見積依頼
複数の業者から見積もりを取り、提案内容、費用、実績、対応範囲などを比較検討します。3Dイメージ図や平面図を無料で作成してくれる業者を選ぶと、完成後のイメージがしやすいためおすすめです。
※ 提案内容・範囲については事前に必ずご確認ください。
-
契約・スケジュール設定
業者を選定し契約を締結したら、具体的な施工スケジュールを立てます。
※ 改装中はオフィスが通常通り使用できない場合があるため、社内外への告知や仮オフィスの準備なども考慮し、余裕を持ったスケジューリングが必要です。
-
レイアウト変更の実施・進行管理
施工中は担当者が立ち会い、細かい部分まで確認することが大切です。大規模な変更の場合、夜間や休日作業となる可能性もあります。
-
竣工・アフターフォロー
施工完了後、目的が達成されたか、従業員の満足度はどうかなどを評価します。必要に応じて再調整や改善を行うとともに、長期的な運用を見据えたアフターフォロー体制があるかを確認しましょう。
- オフィスの平面図
- 現在のオフィス状況を把握するために不可欠です。
- 現状の課題と目的
- レイアウト変更で何を解決したいのか、どのようなオフィスにしたいのかを具体的に伝えます。
- 従業員数と働き方
- 現在の従業員数、今後の増減見込み、リモートワークやフリーアドレスの導入状況など。
- 予算
- レイアウト変更にかけられるおおよその予算を伝えておくと、実現可能なプランを提案してもらいやすくなります。
- 希望のデザインやコンセプト
- 漠然としたイメージでも構いません。参考になる他社の事例や写真などがあれば、共有することで具体的な提案につながります。
配線・IT・セキュリティ・防災対策
現代のオフィスにおいて、これらはレイアウト設計の初期段階から考慮すべき重要項目です。
コストと経済性を考えたプランニング
理想のオフィスを実現するためには、コストも重要な要素です。
陥りやすい落とし穴と失敗例
動線や寸法不足による業務効率低下
セキュリティや安全面の見落とし
社員・利用者のニーズ無視
コミュニケーションや集中のバランス失敗
オフィスレイアウトの事例・レイアウトイメージ例紹介
参考になる規模・働き方別レイアウト事例(実例)
様々な規模や働き方に対応したオフィスレイアウトの成功事例は、自社のオフィスづくりにおいて大きなヒントとなります。実際に、オフィスレイアウトサービスを利用した施工事例をご紹介します。当社(旭産業)の玄関スペースも実際に発注し、どのような流れになるのかを体験出来ましたので、まずは当社の施工事例からご紹介。
事例1.旭産業本社オフィスビルの玄関口・階段部分リフォーム
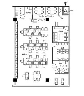
事例2.中規模:30~65坪オフィスのレイアウト変更
部門間の連携や多様な働き方に対応するための工夫が求められます。
事例3.大規模:フロア全体のリニューアル
大規模なリニューアルを行う場合、企業文化の醸成やブランディング、大規模な働き方改革の実現が主な目的となります。
目的別おしゃれ・機能的なレイアウト
特定の目的やデザインコンセプトに特化したレイアウトは、企業イメージの向上にもつながります。例えば次のようなプランやアイデアはどうでしょう。
※画像はイメージです
フリーアドレス、ABW導入プラン例
カフェ風・コワーキング風オフィス
自然光・グリーン・素材を活かした空間
オフィスレイアウト相談・依頼の流れ
業者選びのチェックポイント
オフィスレイアウトのプロに依頼することで、法令遵守はもちろん、自社に最適なデザインと機能性を両立したオフィスを実現できます。業者選びの際は以下のポイントを確認しましょう。
プラン作成~施工までの流れと注意点
一般的なオフィスレイアウト相談・依頼の流れは以下の通りです。
相談時に準備しておきたい情報
スムーズな相談のために、以下の情報を準備しておくと良いでしょう。
まとめ
理想のオフィスづくりの第一歩
オフィスレイアウトは、単なる物理的な空間設計に留まらず、従業員の働きやすさ、生産性、ひいては企業の成長戦略に直結する重要な経営課題です。本記事で解説した基本知識、デスク配置パターン、設計のポイント、そして陥りやすい落とし穴を理解することで、皆様の理想とするオフィスづくりに向けた第一歩を踏み出すことができるでしょう。快適で機能的なオフィスは、従業員のモチベーションを高め、企業全体のパフォーマンス向上に貢献します。
安心して相談できる業者をパートナーに
オフィスレイアウトの設計・施工には、専門的な知識と経験が不可欠です。基準寸法の把握、動線計画、ゾーニングの考え方、そして法律・安全・感染対策に至るまで、多岐にわたる要素を総合的に考慮し、最適なプランを導き出すためにはプロのサポートが不可欠です。
当社では、お客様の不安や疑問を解決し、経営の視点からコスト削減と生産性向上を両立する効果的なオフィスづくりをサポートします。3Dソフトを用いた無料のレイアウト提案や、オフィス家具を含めた一括納入、各種工事施工まで、ワンストップで対応可能です。ぜひ安心して、当社のサービスをご活用ください。

今すぐできるレイアウト見直しのすすめ
「何から始めれば良いか分からない」という方も、まずは現状のオフィスの課題を整理し、理想の働き方をイメージすることから始めてみませんか?小さなレイアウトの見直しでも、従業員の満足度や業務効率に変化をもたらすことがあります。例えば、デスク周りの整理整頓、共有スペースの活用方法の見直し、不要な物の排除など、今すぐできることから取り組んでみましょう。そして、より本格的なオフィス改革をご検討の際には、ぜひ当社までお気軽にご相談ください。専門のスタッフがお客様のニーズに寄り添い、最適なオフィスプランをご提案いたします。
オフィスレイアウトの関連ページ・サービスご案内
オフィス移転のコストを抑える『中古家具』の販売や大量のごみに対応した不用品回収、オカムラなどの最新オフィス家具販売など、商品販売からサービスまでオフィス移転やオフィス家具のご相談はおまかせ下さい。
また、移転ほど大規模なご相談でなくとも、家具の導入時に合わせて地震対策も施工してほしい、といったご相談も承っております。

はじめての方へ
5,500円(税込)以上のご注文で送料無料! カード決済対応
【メルマガ会員限定】割引対象の予定カレンダー公開中!





















